


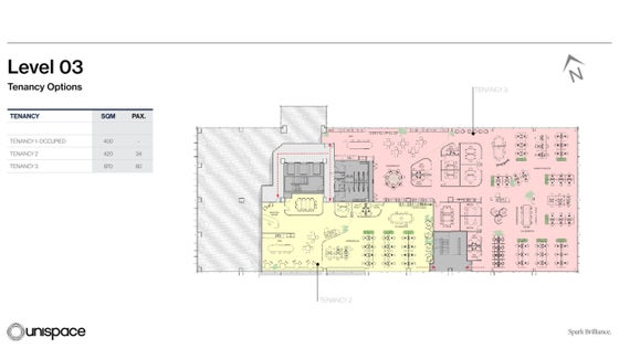
+20Welcome to a rare opportunity in Tauranga's commercial landscape - an exceptional level 3 office space of approximately 1,530sqm at 306 Cameron Road.
Just a short walk to the heart of the Tauranga CBD, this highly sought-after location presents a limited offering of large offices for lease, making it a prime choice for businesses seeking an unrivalled space. Whether you're a growing company looking for expansion or an established organisation seeking a new, inspiring workspace, this tenancy is sure to meet and exceed your expectations!
Surrounded by floor-to-ceiling windows, the office has excellent natural light, creating a refreshing and uplifting atmosphere. The outstanding views not only enhance the aesthetic appeal of the office but also contribute to a productive and pleasant working environment. A high class fit-out already in place offers a complimentary mix of open plan work space, various meeting rooms and offices complete with air conditioning throughout and large staff room.
The building at 306 Cameron Road offers a host of amenities for the occupants. As you enter the building, you are welcomed by a spacious lobby area that sets the tone for a professional and well-maintained property. The building is equipped with three lifts and stair access, making it easy for people to move between floors efficiently.
For added convenience, each floor is equipped with separate male and female bathroom facilities. 306 Cameron Road also provides end of trip facilities that include showers and secure bike parking.
Total area: 1,637 sqm (comprising 1,530sqm tenancy, 107sqm common area + end of trip facilities)
Rental: by negotiation
Carparks: Available onsite at $65 each per week plus GST
Available: now
Contact the Rory Brown on 022 490 1437 to discuss this opportunity or to arrange an onsite inspection.

Our agents are experts on all things in the property market, if you haven't found what you're looking for, please enquire with the listing agent now to have all of your property questions answered.
Contact us and have your questions answered.